新築戸建, 土地

山科区大塚北溝町 B区画 売土地

  • 外観 
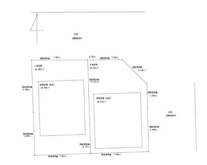
  • 区画図 

  • 大塚小学校

    • 小学校

    075-592-6141 〒607-8135 京都府京都市山科区大塚野溝町59

  • 音羽中学校

    • 中学校

    075-581-9115 〒607-8135 京都府京都市山科区大塚野溝町86

  • 大塚消防分団

    • 治安

    京都市山科区大塚野溝町86

  • 水本内科医院

    • 医療

    075-501-4105 〒6078071 京都市山科区音羽千本町17-3

  • 大塚交番

    • 治安

    075-581-7000 〒6078132 京都市山科区大塚森町12-15

  • ハッピーテラダ山科大塚店

    • スーパー・百貨店

    075-501-2858 京都市山科区大塚森町15?4

  • ハウスプラネット

    • サービス

    075-595-8585 京都市山科区大塚南溝町5-6

  • 音羽消防分団

    • 治安

    京都市山科区音羽森廻り町32

  • 南殿幼稚園

    • 教育

    075-502-8817 京都市山科区音羽伊勢宿町34

  • 音羽川消防分団

    • 治安

    京都市山科区音羽森廻り町36

  • 燻製マーケット

    • テイクアウト・宅配

    075-204-7585 〒6078142 京都府京都市山科区東野中井ノ上町66-6

  • マツヤスーパー大塚店

    • スーパー・百貨店

    075-594-5550 〒607-8124 京都市山科区大塚檀ノ浦2番地1

  • イメージなし

    洛和会音羽病院

    • 医療

    075-593-4111 〒6078062 京都市山科区音羽珍事町2

※写真や図と実際の現状とが異なる場合は現状を優先させて頂きます。

電話の受付時間/9:30〜18:30 定休日/毎週火・水曜日

ここがオススメ!

  • 建築条件無し お好きな工務店・ハウスメーカーで建てられます
  • ハッピーテラダ山科大塚店徒歩約6分

基本情報

価格
2,180万円
住所
京都府京都市山科区大塚北溝町 Google Map
最寄り駅
京都市営地下鉄東西線/ 東野駅  徒歩12分 京阪バス 「大塚野溝町」バス停  徒歩3分
種類
新築戸建, 土地
構造/階数
- / -
間取り

  • 小学校近隣
  • スーパー近隣
  • 建築条件無し

設備条件

設備条件
【水道】公営  【排水】公共下水  【ガス】都市ガス 

物件概要

間取り

建物面積(坪数)
- (-)
マンション管理費
-
修繕積立金
-
駐車場/月額料金
-
現況
更地
借地料/借地期間
- / -
土地権利
所有権
土地面積(坪数)
実測 83.48㎡ (25.25坪)
私道負担面積
セットバック
無 -
地目/地勢
宅地/ 平坦
接道状況
一方
公道 北 6m 接面7m
建築条件
-
都市計画
市街化区域
建ぺい率/容積率
60%/ 200%
用途地域
第二種中高層住居専用/ -
構造
-
階建
-
向き
-
築年月(築年数)
総戸数/総区画数
-/ -
その他の法令上の制限
15m第一種高度地区、宅地造成工事規制区域、山ろく型建造物修景地区
管理方式
-
管理形態
-
管理会社
-
建築確認番号
-
月額収入(現行)
-
月額収入(想定)
-
表面利回り
-
想定利回り
-
取引態様/引渡時期
仲介/ 相談
物件番号
10585
備考
大塚小学校 約345m 音羽中学校 約110m P39 D-3

西側隣地の境界ブロックが一部越境しております(覚書取得済)
※区割り図有り 分筆予定

山科区大塚北溝町 B区画 売土地
お問い合わせ

電話の受付時間/9:30〜18:30 定休日/毎週火・水曜日

WEBからの問い合わせはこちら

その他物件