中古テラスハウス

山科区勧修寺堂田 中古テラスハウス

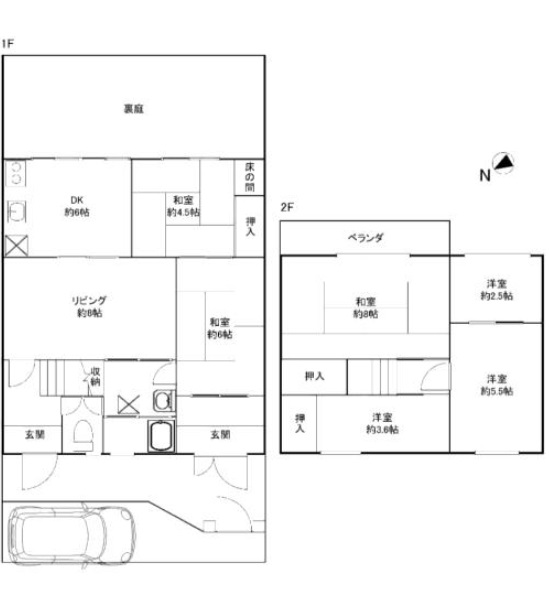
  • 間取り図 

  • 勧修小学校

    • 小学校

    075-591-0003 〒607-8211 京都府京都市山科区勧修寺東栗栖野町42

  • 勧修中学校

    • 中学校

    075-591-9111 〒607-8214 京都府京都市山科区勧修寺平田町92

  • 勧修寺柴山 周辺

  • 柴山東児童公園

    • 施設

    京都市山科区勧修寺堂田58

  • 勧修保育園

    • 教育

    075-592-3351 京都市山科区勧修寺堂田13-1

  • 堂田児童公園

    • 施設

    京都市山科区勧修寺柴山8

  • ECCジュニア 勧修寺柴山教室

    • 学習

    075-592-8782 京都府京都市山科区勧修寺柴山8-176

  • 西野山保育園

    • 教育

    075-581-1820 京都市山科区勧修寺柴山8-162

  • 河冨久

    • 専門店

    075-502-2990 京都市山科区勧修寺柴山15-38

  • スマイリー

    • サービス

    075-594-5800 京都市山科区勧修寺東堂田町15サンライズ勧修寺102号

  • 柴山西児童公園

    • 施設

    京都市山科区西野山中鳥井町169

  • 中鳥井南児童公園

    • 施設

    京都市山科区西野山中鳥井町132

※写真や図と実際の現状とが異なる場合は現状を優先させて頂きます。

電話の受付時間/9:30〜18:30 定休日/毎週火・水曜日

ここがオススメ!

  • フレスコ勧修店まで徒歩約6分♪
  • 部屋数多めの7DK

基本情報

価格
1,380万円
住所
京都府京都市山科区勧修寺堂田 Google Map
最寄り駅
京都市営地下鉄東西線/ 椥辻駅  徒歩18分 京阪バス 「西野山団地」バス停  バス3分
種類
中古テラスハウス
構造/階数
木造 / 地上2階
間取り
7DK
DK 6帖 1室 1階
洋室 8帖 1室 1階
和室 4.5帖 1室 1階
和室 6帖 1室 1階
和室 8帖 1室 2階
洋室 2.5帖 1室 2階
洋室 5.5帖 1室 2階
洋室 3.6帖 1室 2階
  • 駐車場付
  • 小学校近隣

設備条件

設備条件

物件概要

間取り
7DK
DK 6帖 1室 1階
洋室 8帖 1室 1階
和室 4.5帖 1室 1階
和室 6帖 1室 1階
和室 8帖 1室 2階
洋室 2.5帖 1室 2階
洋室 5.5帖 1室 2階
洋室 3.6帖 1室 2階
建物面積(坪数)
95.28㎡ (28.82坪)
マンション管理費
-
修繕積立金
-
駐車場/月額料金
空有  
現況
空家
借地料/借地期間
- / -
土地権利
所有権
土地面積(坪数)
公簿 105.3㎡ (31.85坪)
私道負担面積
-  
セットバック
- -
地目/地勢
宅地/ -
接道状況
一方
公道 南 5.2m 接面7.1m
建築条件
-
都市計画
市街化区域
建ぺい率/容積率
60%/ 200%
用途地域
第一種中高層住居専用/ -
構造
木造
階建
地上2階
向き
-
築年月(築年数)
1969年 9月 (56年)
総戸数/総区画数
-/ -
その他の法令上の制限
15m第1種高度地区
管理方式
-
管理形態
-
管理会社
-
建築確認番号
-
月額収入(現行)
-
月額収入(想定)
-
表面利回り
-
想定利回り
-
取引態様/引渡時期
仲介/ 相談
物件番号
10626
備考
勧修小学校 約550m 勧修中学校 約1310m P56 E-5
※改装プランをご用意しております

山科区勧修寺堂田 中古テラスハウス
お問い合わせ

電話の受付時間/9:30〜18:30 定休日/毎週火・水曜日

WEBからの問い合わせはこちら

その他物件